22.500,00 €
Na voljo za naročilo brez zaloge
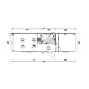
Delno opremljena mobilna hiša J1
Lahko se zamenja emitacija fasade.
Namesto lesene obloge je lahko klasična pločevina – bela.
Zunanje mere ( širina x dolžina x višina ):
300 x 800 x 285 cm = 24 m2
izredni prevoz
ali
2,4 x 800 x 285 cm = 19,2 m2 … cena z ddv-jem, velja za to dimenzijo hiše.
navadni prevoz
Obstaja možnost izolacije do 8 cm za nekatere hiše.
V ceni je že vključen ddv in strošek transporta.
Montaže ni v ceni.
AS NACIONAL Consulting d.o.o.